6 locali in vendita

Roma, Viale delle Medaglie D'Oro - Balduina Medaglie D'Oro
€ 695.000
6 locali 6 locali
186 Mq 186 Mq
2 bagni 2 bagni

6 locali in vendita

Roma, Viale delle Medaglie D'Oro - Balduina Medaglie D'Oro

Descrizione annuncio

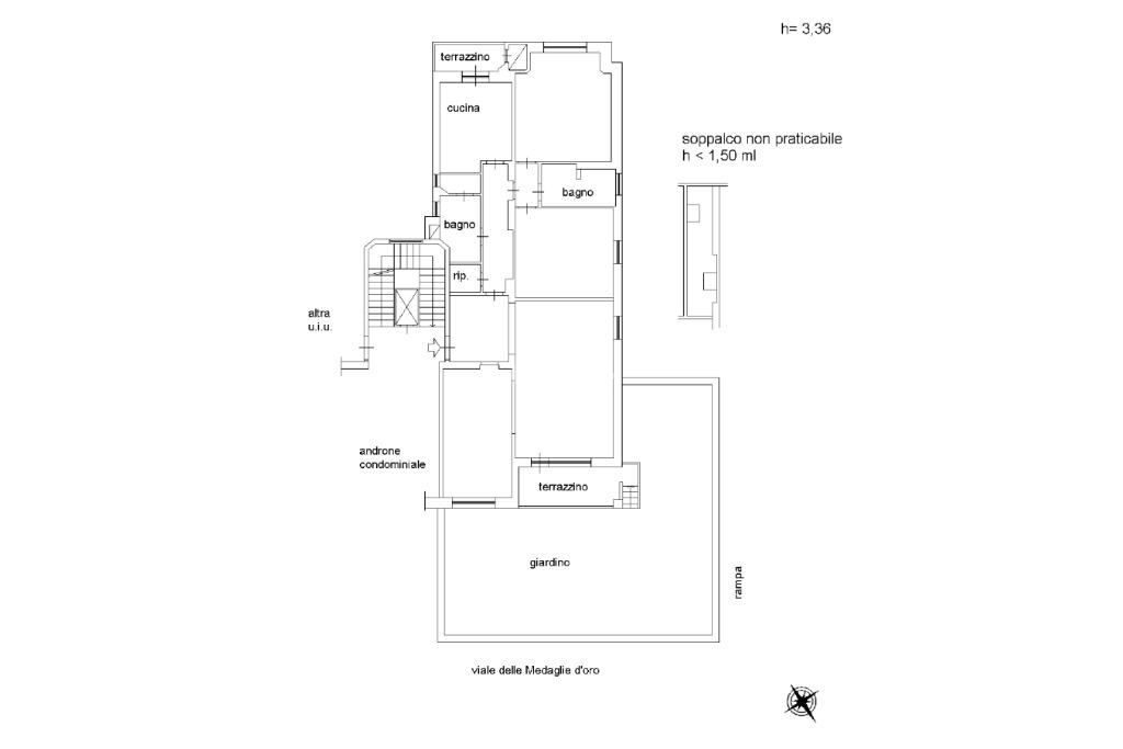
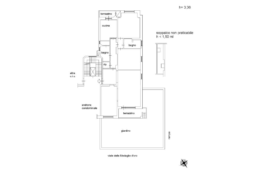
VIALE DELLE MEDAGLIE D'ORO - AMPIA SOLUZIONE RISTRUTTURATA CON GIARDINO PRIVATO E POSTO AUTO

Nel cuore della Balduina, e più precisamente in Viale delle Medaglie d’Oro, in posizione super centrale e strategica, proponiamo in vendita una soluzione unica nel suo genere: un piano terra con giardino privato, una vera chicca.

L’ingresso è ampio e accogliente e conduce direttamente a un grande salone di rappresentanza, con accesso diretto a un terrazzino che accompagna al giardino, uno spazio ideale per pranzi e cene con amici, momenti di relax e vita all’aria aperta.

La cucina, abitabile ed elegante, è pensata per unire funzionalità e comfort ed è arricchita da un ulteriore terrazzino. La distribuzione interna comprende inoltre un comodo ripostiglio, uno studio ideale come spazio di lavoro o eventuale camera aggiuntiva, due camere da letto matrimoniali e due bagni.

La casa è stata ristrutturata con materiali di qualità ed è pronta per essere abitata senza necessità di alcun intervento.

La proprietà è completata da numerose pertinenze, tra cui una cantina, un posto auto condominiale e un’area condominiale dedicata al parcheggio moto.

Ristrutturata, con giardino privato, completa di pertinenze e a pochi passi dalla metro Cipro (Linea A): un’opportunità da non lasciarsi sfuggire.

Contattaci subito per maggiori informazioni o per prenotare una visita al numero 06.35.40.34.54 oppure su WhatsApp al 339 536 8094.

Mostra tutto

Nelle vicinanze

Trasporto pubblico Trasporto pubblico
Cipro
Cipro
870 m
Valle Aurelia
Valle Aurelia
1,3 Km
Appiano
Appiano
470 m
stazione di Roma Balduina
stazione di Roma Balduina
810 m
Risorgimento/S. Pietro
Risorgimento/S. Pietro
1,6 Km
Ricariche auto elettriche Ricariche auto elettriche
Rome Cavalieri, A Waldorf Astoria Resort
550 m
Roma Clodio | EnelX
850 m
Axpo - Stazio
890 m
Parcheggio Mercato Trionfale - Musei Vaticani
1,0 Km
Eneldrive Risorgimento
1,4 Km
Scuole Scuole
Istituto Comprensivo Diogene Romeo Chiodi
270 m
Scuola Media Ludovico Ariosto
630 m
Giovan Battista Vico
680 m
Istituto Professionale per l'Agricoltura Federico Delpino
880 m
Liceo Cornelio Tacito
910 m
Farmacia Farmacia
Farmacia
140 m
Farmacia Balduina
340 m
Farmacia Pollicina
450 m
Bisozzi
580 m
Essere Benessere
650 m
Ospedali Ospedali
Ospedale Oftalmico
810 m
Pronto Soccorso Ospedale Oftalmico
860 m
AISPS Roma - Centro di Sessuologia
1,5 Km
Villa Stuart
1,6 Km
Complesso Integrato Columbus
1,7 Km
Supermercati Supermercati
Carrefour Market
210 m
Carrefour express
310 m
Simply Market
330 m
PAM
530 m
Tuodì
590 m
Negozi Negozi
Kabayan Store
240 m
Midas Sport
370 m
-
530 m
Minimarket
530 m
Panificio Giammona
530 m
Bar Bar
Life'85
600 m
Beere mangiare e co.
610 m
Bar
640 m
Lu Night Bistrò
760 m
Fabrica
860 m
Ristoranti Ristoranti
Il peperoncino dispettoso
90 m
Kalatog Pinggan
130 m
Trattoria Picchiapo
140 m
Il Farinaio
190 m
Pizzeria Caselli
220 m
Mostra tutto

Caratteristiche

Rif.:
61169939
Piano:
Terra con giardino di 5 con ascensore
Totale piani:
5
Posti auto:
1
Balconi:
2
Camere da letto:
3
Mostra tutto
Prezzo Prezzo
€ 695.000
Rata mutuo Rata mutuo
€ 3.276 / mese
Proponi il tuo prezzoProponi il tuo prezzo

Classe Energetica

G
G
G
G
G
G
G
G
G
EP invernale del fabbricato:
EP estiva del fabbricato:
Anno di costruzione:
1950
Riscaldamento:
Centralizzato
Tipo impianto:
A radiatori
Tipo alimentazione:
Metano

Ti interessa visionare l'immobile?

Fissa un appuntamento  Fissa un appuntamento

Richiedi informazioni

Clicca su Leggi per aprire l'informativa
* Questi campi sono obbligatori

Calcola il tuo mutuo

Semplice e senza impegno
Anticipo

( % )
Mutuo

( % )

pochi semplici passi

inserisci i tuoi dati
Questionario completato
Grazie per aver richiesto un appuntamento senza impegno con un nostro Consulente del Credito e Assicurativo.

Hai inserito correttamente tutti i dati necessari e a breve riceverai una e-mail con un link da convalidare per inviare i tuoi dati.
Affiliato
Studio Balduina Srl
P.le delle Medaglie D'oro , 27 00136 Roma (RM)

Il nostro staff


  • Salvatore Bonaccorso
    Responsabile

  • Federica Focà
    Collaboratrice

  • Chiara Catapang Morales
    Coordinatrice
P.le delle Medaglie D'oro , 27 00136 Roma (RM)
Zona: Balduina
Mostra su mappa
Orari: lunedì - venerdì 08.45/19.00 - sabato 9.00/13.00
Affiliato
Studio Balduina Srl
P.le delle Medaglie D'oro , 27 00136 Roma (RM)

2026 Tecnocasa Franchising S.p.A. - P. IVA 08365160152 - Via Monte Bianco 60/A 20089 Rozzano (MI). Ogni agenzia ha un proprio titolare ed è autonoma. Privacy policy | Policy utilizzo | Cookie policy