Trilocale in vendita

Roma, Viale delle Medaglie d'Oro
€ 323.000
3 locali 3 locali
62 Mq 62 Mq
1 bagno 1 bagno

Trilocale in vendita

Roma, Viale delle Medaglie d'Oro

Descrizione annuncio

VIALE DELLE MEDAGLIE D’ORO – SOLUZIONE COMPLETA: RISTRUTTURATA CON POSTO AUTO

Nel cuore della Balduina, più precisamente nel comprensorio privato a Viale delle Medaglie d’Oro dotato di servizio di portineria, proponiamo in vendita un trilocale con possibilità posto auto.

Un’ottima opportunità per chi desidera un appartamento moderno, mai abitato prima e pronto da vivere in una delle zone più servite e richieste della città.

L’appartamento si trova in una posizione comoda e ben collegata: nelle immediate vicinanze sono presenti supermercati, farmacie, scuole, attività commerciali di ogni genere e aree verdi.

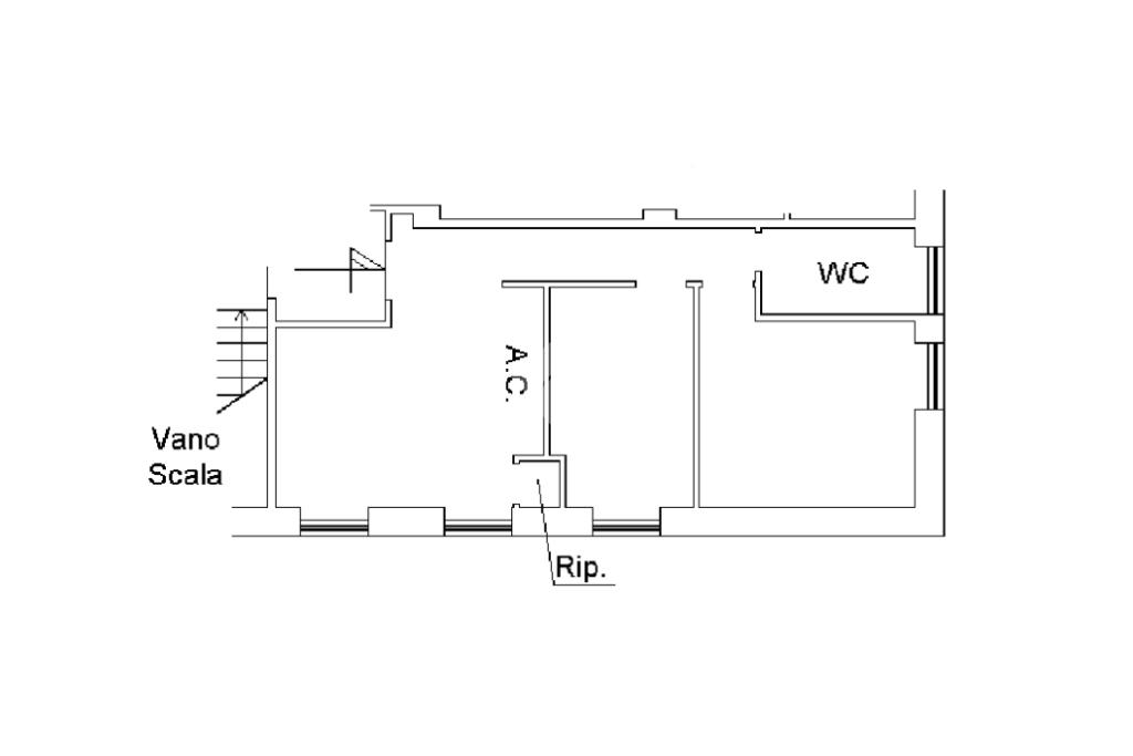
L’ingresso si apre su un accogliente salone con cucina a vista, pensato per offrire uno spazio conviviale, ideale per rilassarsi o ricevere ospiti.
La camera matrimoniale, ampia e confortevole, è studiata per garantire la massima privacy e il giusto equilibrio tra relax e funzionalità. Accanto, troviamo un' ulteriore camera da letto e completa la proprietà un bagno finestrato, dotato di box doccia e rifinito con materiali moderni e sanitari di qualità.

L'immobile presenta: predisposizione aria condizionata, porta blindata, serrande elettriche, infissi in pvc, bagno completo di con sanitari e box doccia nuovi.

Una soluzione abitabile fin da subito e completa di ogni esigenza è un’occasione da non perdere

Per maggiori informazioni o per organizzare una visita, non esitare a contattare il numero 06.35.40.34.54 o inviare un messaggio su WhatsApp al 339 536 8094

Mostra tutto

Nelle vicinanze

Trasporto pubblico Trasporto pubblico
Cipro
Cipro
1,5 Km
Ottaviano
Ottaviano
1,7 Km
stazione di Roma Balduina
stazione di Roma Balduina
500 m
Appiano
Appiano
940 m
Risorgimento/S. Pietro
Risorgimento/S. Pietro
2,0 Km
Ricariche auto elettriche Ricariche auto elettriche
Axpo - Stazio
330 m
Rome Cavalieri, A Waldorf Astoria Resort
330 m
Roma Clodio | EnelX
1,0 Km
Parcheggio Mercato Trionfale - Musei Vaticani
1,5 Km
Roma Mazzini | EnelX
1,8 Km
Scuole Scuole
Istituto Comprensivo Diogene Romeo Chiodi
790 m
Giacomo Leopardi
880 m
John Felice Rome Center
1,2 Km
Scuola Media Ludovico Ariosto
1,2 Km
Giovan Battista Vico
1,2 Km
Farmacia Farmacia
Farmacia Rallo
80 m
Farmacia
290 m
Farmacia Balduina
400 m
Farmacia dott.ssa Renata Gerardini
470 m
Farmacia Pollicina
520 m
Ospedali Ospedali
Villa Stuart
1,1 Km
Complesso Integrato Columbus
1,3 Km
Ospedale Oftalmico
1,4 Km
Pronto Soccorso Ospedale Oftalmico
1,4 Km
Policlinico Universitario Agostino Gemelli
1,7 Km
Supermercati Supermercati
Carrefour Market
40 m
Simply Market
140 m
PAM
180 m
Elite
310 m
Carrefour express
790 m
Negozi Negozi
Sicilian Bakery
70 m
OVS
130 m
Negozi
230 m
-
350 m
Panificio Giammona
370 m
Bar Bar
Life'85
850 m
Beere mangiare e co.
1,2 Km
Bar
1,2 Km
Enofficina
1,3 Km
Lu Night Bistrò
1,3 Km
Ristoranti Ristoranti
La Natura
100 m
Foodoo
110 m
Ristorante Festoavieno
160 m
Altrogiro
290 m
Il Chiodo Fisso
310 m
Mostra tutto

Caratteristiche

Rif.:
61163253
Piano:
Basso di 4 con ascensore
Totale piani:
4
Posti auto:
1
Camere da letto:
2
Arredamento:
Assente
Mostra tutto
Prezzo Prezzo
€ 323.000
Rata mutuo Rata mutuo
€ 1.508 / mese
Spese annue Spese annue
€ 600
Proponi il tuo prezzoProponi il tuo prezzo

Classe Energetica

F
F
F
F
F
F
F
F
F
EP globale non rinnovabile:
134.00 kW h/m² anno
EP globale rinnovabile:
12.00 kW h/m² anno
EP invernale del fabbricato:
EP estiva del fabbricato:
Anno di costruzione:
1960
Riscaldamento:
Centralizzato
Tipo impianto:
A radiatori
Tipo alimentazione:
Metano

Ti interessa visionare l'immobile?

Fissa un appuntamento  Fissa un appuntamento

Richiedi informazioni

Clicca su Leggi per aprire l'informativa
* Questi campi sono obbligatori

Calcola il tuo mutuo

Semplice e senza impegno
Anticipo

( % )
Mutuo

( % )

pochi semplici passi

inserisci i tuoi dati
Questionario completato
Grazie per aver richiesto un appuntamento senza impegno con un nostro Consulente del Credito e Assicurativo.

Hai inserito correttamente tutti i dati necessari e a breve riceverai una e-mail con un link da convalidare per inviare i tuoi dati.
Affiliato
Studio Balduina Srl
P.le delle Medaglie D'oro , 27 00136 Roma (RM)

Il nostro staff


  • Salvatore Bonaccorso
    Responsabile

  • Federica Focà
    Collaboratrice

  • Chiara Catapang Morales
    Coordinatrice
P.le delle Medaglie D'oro , 27 00136 Roma (RM)
Zona: Balduina
Mostra su mappa
Orari: lunedì - venerdì 08.45/19.00 - sabato 9.00/13.00
Affiliato
Studio Balduina Srl
P.le delle Medaglie D'oro , 27 00136 Roma (RM)

2026 Tecnocasa Franchising S.p.A. - P. IVA 08365160152 - Via Monte Bianco 60/A 20089 Rozzano (MI). Ogni agenzia ha un proprio titolare ed è autonoma. Privacy policy | Policy utilizzo | Cookie policy