Trilocale in vendita

Roma, Via Trionfale - Balduina
€ 445.000
Prezzo aggiornato
3 locali 3 locali
80 Mq 80 Mq
2 bagni 2 bagni

Trilocale in vendita

Roma, Via Trionfale - Balduina

Descrizione annuncio

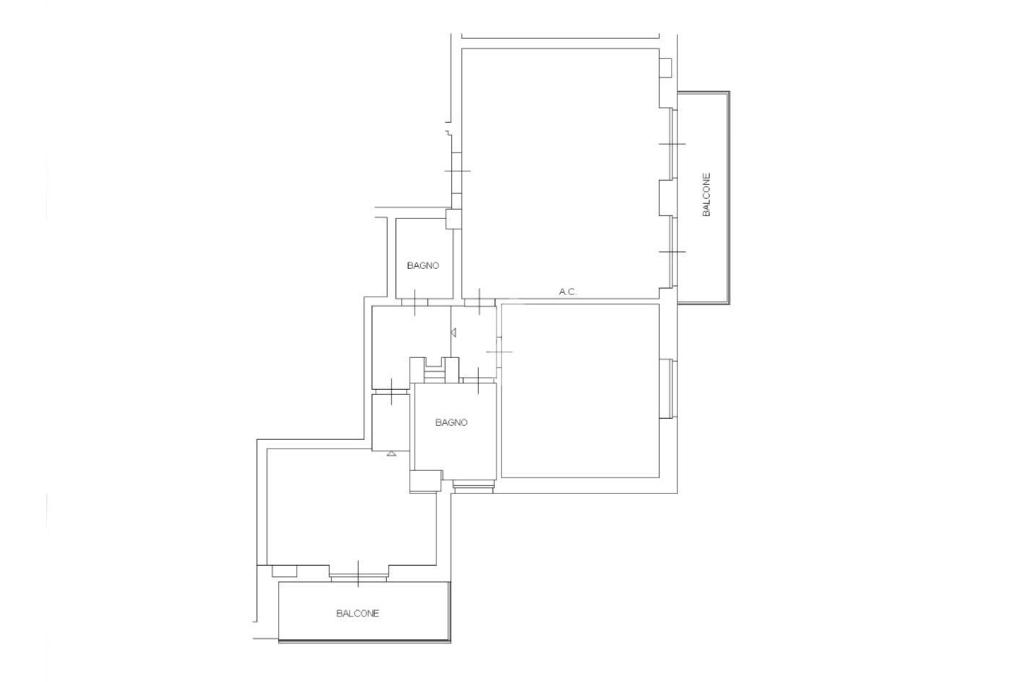
VIA TRIONFALE - QUARTO PIANO, TRILOCALE MESSO A NUOVO, CON SPAZIO ESTERNO

Nel cuore di uno dei quartieri residenziali più apprezzati e ben collegati di Roma, proponiamo in vendita un elegante trilocale posto al quarto piano, completamente ristrutturato, pronto da vivere fin da subito.

L'immobile si apre su un'ampia e luminosa zona giorno con salone e cucina a vista, ideata per favorire convivialità e comfort, con accesso diretto al balcone che rappresenta una vera e propria chicca, perfetta per momenti di relax all'aperto.

La zona notte è composta da due camere da letto, di cui una con accesso a un ulteriore balcone che garantisce ottima aerazione e luce naturale. La casa dispone di due bagni completi, entrambi rifiniti con sanitari nuovi e box doccia di design.

Ci troviamo all'interno di un contesto residenziale ben servito con diverse linee di autobus e rapidi collegamenti alla metropolitana che facilitano gli spostamenti verso il centro città, oltre alla presenza nelle immediate vicinanze di negozi di quartiere, supermercati, scuole e farmacie, rendendo la soluzione ideale per chi cerca comfort e praticità nella vita quotidiana.

Completa la proprietà la possibilità di acquistare separatamente una soffitta, utile come spazio accessorio o deposito.

Una casa completamente ristrutturata, posta a un piano alto, pronta da vivere fin da subito e valorizzata da gradevoli spazi esterni è una soluzione da non perdere

Contattaci subito per maggiori informazioni o per prenotare una visita al numero 06.35.40.34.54 oppure su WhatsApp al 339 536 8094.

Mostra tutto

Nelle vicinanze

Trasporto pubblico Trasporto pubblico
Ottaviano
Ottaviano
2,0 Km
Cipro
Cipro
2,0 Km
stazione di Roma Balduina
stazione di Roma Balduina
1,1 Km
Appiano
Appiano
1,6 Km
Mancini
Mancini
1,6 Km
Ricariche auto elettriche Ricariche auto elettriche
Axpo - Stazio
380 m
Rome Cavalieri, A Waldorf Astoria Resort
700 m
Roma Clodio | EnelX
1,2 Km
Roma Mancini | EnelX
1,5 Km
Roma Mazzini | EnelX
1,7 Km
Scuole Scuole
Giacomo Leopardi
220 m
John Felice Rome Center
950 m
IUSM Università degli Studi di Roma "Foro Italico"
1,1 Km
Università degli Studi di Roma "Foro Italico" Rettorato
1,3 Km
Istituto Comprensivo Diogene Romeo Chiodi
1,5 Km
Farmacia Farmacia
Farmacia
120 m
Farmacia Rallo
690 m
Farmacia dott.ssa Renata Gerardini
1,1 Km
Farmacia Balduina
1,1 Km
Farmacia Igea
1,2 Km
Ospedali Ospedali
Villa Stuart
380 m
Complesso Integrato Columbus
1,4 Km
Policlinico Universitario Agostino Gemelli
1,7 Km
Hospice Villa Speranza
1,9 Km
Ospedale Oftalmico
1,9 Km
Supermercati Supermercati
Elite
440 m
Carrefour Market
690 m
Simply Market
730 m
PAM
880 m
Rosati Due
1,1 Km
Negozi Negozi
Negozi
580 m
Sicilian Bakery
750 m
OVS
770 m
Windrose Roma
980 m
-
1,1 Km
Bar Bar
chiosco/bar 15
920 m
Chalet nel Bosco
1,0 Km
Il Bosco delle Fragole
1,1 Km
Life'85
1,2 Km
Punto Bar
1,3 Km
Ristoranti Ristoranti
The View
420 m
Ristorante Caffè Lo Zodiaco
460 m
La Natura
620 m
Ristorante Festoavieno
630 m
Foodoo
630 m
Mostra tutto

Caratteristiche

Rif.:
61157618
Piano:
4 di 6 con ascensore (Piano alto)
Balconi:
2
Camere da letto:
2
Arredamento:
Assente
Condizionamento:
Predisposizione impianto
Mostra tutto
Prezzo Prezzo
€ 445.000
Rata mutuo Rata mutuo
€ 2.078 / mese
Spese annue Spese annue
€ 1.200
Proponi il tuo prezzoProponi il tuo prezzo

Classe Energetica

E
E
E
E
E
E
E
E
E
EP globale rinnovabile:
175.00 kW h/m² anno
EP invernale del fabbricato:
EP estiva del fabbricato:
Anno di costruzione:
1955
Riscaldamento:
Centralizzato
Tipo impianto:
A radiatori
Tipo alimentazione:
Metano

Prezzo ridotto di €1 (6%%)

Ti interessa visionare l'immobile?

Fissa un appuntamento  Fissa un appuntamento

Richiedi informazioni

Clicca su Leggi per aprire l'informativa
* Questi campi sono obbligatori

Calcola il tuo mutuo

Semplice e senza impegno
Anticipo

( % )
Mutuo

( % )

pochi semplici passi

inserisci i tuoi dati
Questionario completato
Grazie per aver richiesto un appuntamento senza impegno con un nostro Consulente del Credito e Assicurativo.

Hai inserito correttamente tutti i dati necessari e a breve riceverai una e-mail con un link da convalidare per inviare i tuoi dati.
Affiliato
Studio Balduina Srl
P.le delle Medaglie D'oro , 27 00136 Roma (RM)

Il nostro staff


  • Salvatore Bonaccorso
    Responsabile

  • Federica Focà
    Collaboratrice

  • Chiara Catapang Morales
    Coordinatrice
P.le delle Medaglie D'oro , 27 00136 Roma (RM)
Zona: Balduina
Mostra su mappa
Orari: lunedì - venerdì 08.45/19.00 - sabato 9.00/13.00
Affiliato
Studio Balduina Srl
P.le delle Medaglie D'oro , 27 00136 Roma (RM)

2026 Tecnocasa Franchising S.p.A. - P. IVA 08365160152 - Via Monte Bianco 60/A 20089 Rozzano (MI). Ogni agenzia ha un proprio titolare ed è autonoma. Privacy policy | Policy utilizzo | Cookie policy