Trilocale in vendita

Roma, Viale delle Medaglie D'Oro
€ 335.000
3 locali 3 locali
65 Mq 65 Mq
1 bagno 1 bagno

Trilocale in vendita

Roma, Viale delle Medaglie D'Oro

Descrizione annuncio

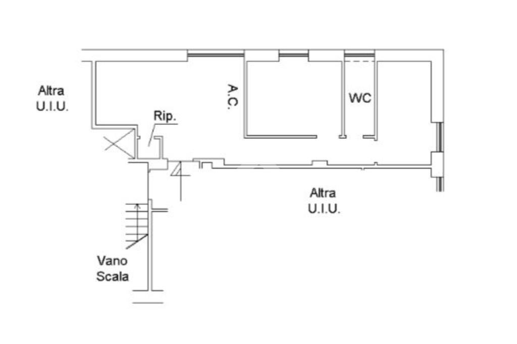
VIALE DELLE MEDAGLIE D'ORO - ESCLUSIVO TRILOCALE, CANTINA E POSSIBILITA' POSTO AUTO

Situato a Balduina, all'interno del comprensorio privato sito a Viale delle Medaglie d’Oro, si propone in vendita un trilocale completo di servizio di portineria, cantina e posto auto condominiale.

Questa è un'occasione unica per chi desidera una casa moderna e pronta da abitare.

La posizione è estremamente vantaggiosa: la via è rinomata per la sua comodità e l'eccellente connessione, con la presenza immediata di supermercati, farmacie, scuole, diverse attività commerciali di ogni tipo e la vicinanza a utili aree verdi.

Varcando la soglia, si accede a un accogliente salone con cucina a vista. Questo ambiente è stato progettato per massimizzare la luminosità e la distribuzione degli spazi, rendendolo l'ideale punto d'incontro per la famiglia o per intrattenere gli ospiti. La zona notte comprende una camera matrimoniale spaziosa e riservata, studiata per garantire tranquillità e relax. A completare l'unità, troviamo un ulteriore camera aggiuntiva e un bagno finestrato.

L'immobile è dotato di tutti i comfort moderni: predisposizione per l'aria condizionata, porta blindata, serrande elettriche, infissi in PVC ad alta efficienza, bagno con box doccia e sanitari.

Un appartamento completamente messo a nuovo, situato in una delle aree più servite e centrali della Balduina, incluso di cantina e posto auto, rappresenta senza dubbio un'opportunità da non lasciarsi sfuggire.

Per maggiori informazioni o per organizzare una visita, non esitare a contattare il numero 06.35.40.34.54 o inviare un messaggio su WhatsApp al 339 536 8094

Mostra tutto

Nelle vicinanze

Trasporto pubblico Trasporto pubblico
Cipro
Cipro
1,5 Km
Ottaviano
Ottaviano
1,7 Km
stazione di Roma Balduina
stazione di Roma Balduina
600 m
Appiano
Appiano
1,0 Km
Risorgimento/S. Pietro
Risorgimento/S. Pietro
2,0 Km
Ricariche auto elettriche Ricariche auto elettriche
Axpo - Stazio
250 m
Rome Cavalieri, A Waldorf Astoria Resort
270 m
Roma Clodio | EnelX
950 m
Parcheggio Mercato Trionfale - Musei Vaticani
1,5 Km
Roma Mazzini | EnelX
1,8 Km
Scuole Scuole
Giacomo Leopardi
780 m
Istituto Comprensivo Diogene Romeo Chiodi
850 m
John Felice Rome Center
1,2 Km
Scuola Media Ludovico Ariosto
1,2 Km
Giovan Battista Vico
1,3 Km
Farmacia Farmacia
Farmacia Rallo
150 m
Farmacia
360 m
Farmacia Balduina
480 m
Farmacia dott.ssa Renata Gerardini
560 m
Farmacia Pollicina
610 m
Ospedali Ospedali
Villa Stuart
990 m
Complesso Integrato Columbus
1,3 Km
Ospedale Oftalmico
1,4 Km
Pronto Soccorso Ospedale Oftalmico
1,4 Km
Policlinico Universitario Agostino Gemelli
1,7 Km
Supermercati Supermercati
Carrefour Market
120 m
Simply Market
210 m
Elite
210 m
PAM
280 m
Tuodì
820 m
Negozi Negozi
Sicilian Bakery
170 m
OVS
220 m
Negozi
230 m
-
460 m
Panificio Giammona
470 m
Bar Bar
Life'85
810 m
Beere mangiare e co.
1,2 Km
Bar
1,2 Km
Enofficina
1,2 Km
chiosco/bar 15
1,3 Km
Ristoranti Ristoranti
Foodoo
30 m
La Natura
90 m
Ristorante Festoavieno
180 m
La Pergola
270 m
The View
370 m
Mostra tutto

Caratteristiche

Rif.:
61148484
Piano:
Basso di 4 con ascensore
Totale piani:
4
Posti auto:
1
Camere da letto:
2
Arredamento:
Assente
Mostra tutto
Prezzo Prezzo
€ 335.000
Rata mutuo Rata mutuo
€ 1.580 / mese
Spese annue Spese annue
€ 600
Proponi il tuo prezzoProponi il tuo prezzo

Classe Energetica

G
G
G
G
G
G
G
G
G
EP invernale del fabbricato:
EP estiva del fabbricato:
Anno di costruzione:
1960
Riscaldamento:
Centralizzato
Tipo impianto:
A radiatori
Tipo alimentazione:
Metano

Ti interessa visionare l'immobile?

Fissa un appuntamento  Fissa un appuntamento

Richiedi informazioni

Clicca su Leggi per aprire l'informativa
* Questi campi sono obbligatori

Calcola il tuo mutuo

Semplice e senza impegno
Anticipo

( % )
Mutuo

( % )

pochi semplici passi

inserisci i tuoi dati
Questionario completato
Grazie per aver richiesto un appuntamento senza impegno con un nostro Consulente del Credito e Assicurativo.

Hai inserito correttamente tutti i dati necessari e a breve riceverai una e-mail con un link da convalidare per inviare i tuoi dati.
Affiliato
Studio Balduina Srl
P.le delle Medaglie D'oro , 27 00136 Roma (RM)

Il nostro staff


  • Salvatore Bonaccorso
    Responsabile

  • Federica Focà
    Collaboratrice

  • Chiara Catapang Morales
    Coordinatrice
P.le delle Medaglie D'oro , 27 00136 Roma (RM)
Zona: Balduina
Mostra su mappa
Orari: lunedì - venerdì 08.45/19.00 - sabato 9.00/13.00
Affiliato
Studio Balduina Srl
P.le delle Medaglie D'oro , 27 00136 Roma (RM)

2025 Tecnocasa Franchising S.p.A. - P. IVA 08365160152 - Via Monte Bianco 60/A 20089 Rozzano (MI). Ogni agenzia ha un proprio titolare ed è autonoma. Privacy policy | Policy utilizzo | Cookie policy