Trilocale in vendita

Roma, Via Teodosio Macrobio
€ 330.000
3 locali 3 locali
60 Mq 60 Mq
1 bagno 1 bagno

Trilocale in vendita

Roma, Via Teodosio Macrobio

Descrizione annuncio

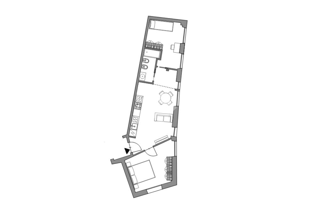
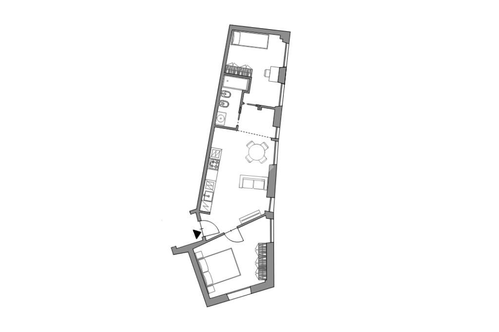
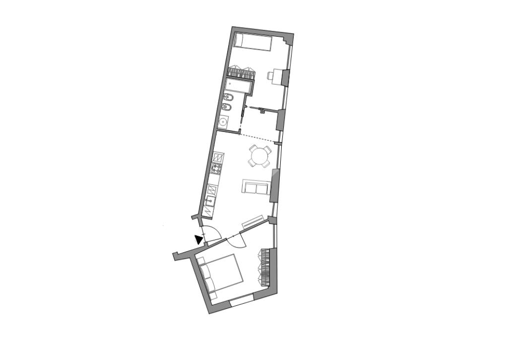
VIA TEODOSIO MACROBIO - TRILOCALE RISTRUTTURATO

Nel cuore della Balduina, a pochi passi da Viale delle Medaglie d’Oro e in una delle zone più servite e residenziali del quartiere, proponiamo in vendita un trilocale completamente ristrutturato, situato al piano terra di una palazzina signorile.

L’immobile sarà consegnato chiavi in mano entro gennaio 2026 e rappresenta una soluzione moderna e funzionale, ideale per chi desidera vivere in un ambiente nuovo, curato e pronto da abitare, in una delle aree più ricercate di Roma.

L’abitazione si apre su un salone con angolo cottura, ambiente accogliente e ben proporzionato, pensato per ospitare la zona living e la cucina a vista, perfetto per momenti di relax e convivialità.

La zona notte si compone di una camera da letto matrimoniale, spaziosa e silenziosa, e di una seconda camera perfetta come cameretta, studio o stanza ospiti. Completa la proprietà un bagno moderno rifinito con materiali di qualità, sanitari sospesi e box doccia.

L’appartamento sarà dotato di infissi in PVC a taglio termico, porta blindata e predisposizione per l’aria condizionata, offrendo così il massimo comfort abitativo.

La posizione è tra le più comode e centrali della Balduina: nelle immediate vicinanze di supermercati, farmacie, scuole, aree verdi e mezzi pubblici, in un contesto elegante e ottimamente collegato con il centro città.

Un’abitazione nuova, efficiente e ben distribuita, perfetta per chi desidera un trilocale moderno nel cuore della Balduina, pronto da vivere o come investimento di pregio.

Per maggiori informazioni o per organizzare una visita, non esitare a contattare il numero 06.35.40.34.54 o inviare un messaggio su WhatsApp al 339 536 8094.

Mostra tutto

Nelle vicinanze

Trasporto pubblico Trasporto pubblico
Cipro
Cipro
1,8 Km
Ottaviano
Ottaviano
2,0 Km
stazione di Roma Balduina
stazione di Roma Balduina
590 m
Appiano
Appiano
1,3 Km
Mancini
Mancini
2,1 Km
Ricariche auto elettriche Ricariche auto elettriche
Axpo - Stazio
230 m
Rome Cavalieri, A Waldorf Astoria Resort
600 m
Roma Clodio | EnelX
1,3 Km
Parcheggio Mercato Trionfale - Musei Vaticani
1,9 Km
Roma Mancini | EnelX
2,0 Km
Scuole Scuole
Giacomo Leopardi
720 m
John Felice Rome Center
810 m
Istituto Comprensivo Diogene Romeo Chiodi
1,2 Km
Scuola elementare Nazario Sauro
1,5 Km
Scuola Media Ludovico Ariosto
1,6 Km
Farmacia Farmacia
Farmacia Rallo
310 m
Farmacia
320 m
Farmacia dott.ssa Renata Gerardini
560 m
Farmacia Balduina
730 m
Farmacia Pollicina
810 m
Ospedali Ospedali
Villa Stuart
860 m
Complesso Integrato Columbus
1,0 Km
Policlinico Universitario Agostino Gemelli
1,4 Km
Hospice Villa Speranza
1,6 Km
Ospedale Oftalmico
1,8 Km
Supermercati Supermercati
Simply Market
300 m
Carrefour Market
330 m
Elite
370 m
PAM
480 m
Carrefour express
1,1 Km
Negozi Negozi
Negozi
140 m
OVS
350 m
Sicilian Bakery
370 m
Windrose Roma
470 m
Minimarket e frutteria
600 m
Bar Bar
Life'85
1,2 Km
GM Bar
1,3 Km
Bar Centodolci
1,3 Km
chiosco/bar 15
1,4 Km
Caffè Van Gogh
1,4 Km
Ristoranti Ristoranti
Ristorante Festoavieno
220 m
La Natura
280 m
Il Chiodo Fisso
320 m
Foodoo
380 m
The View
540 m
Mostra tutto

Caratteristiche

Rif.:
61135790
Piano:
Terra di 4 con ascensore
Totale piani:
4
Camere da letto:
2
Arredamento:
Assente
Condizionamento:
Predisposizione impianto
Mostra tutto
Prezzo Prezzo
€ 330.000
Rata mutuo Rata mutuo
€ 1.556 / mese
Proponi il tuo prezzoProponi il tuo prezzo

Classe Energetica

G
G
G
G
G
G
G
G
G
EP invernale del fabbricato:
EP estiva del fabbricato:
Anno di costruzione:
1958
Riscaldamento:
Centralizzato
Tipo impianto:
A radiatori
Tipo alimentazione:
Metano

Ti interessa visionare l'immobile?

Fissa un appuntamento  Fissa un appuntamento

Richiedi informazioni

Clicca su Leggi per aprire l'informativa
* Questi campi sono obbligatori

Calcola il tuo mutuo

Semplice e senza impegno
Anticipo

( % )
Mutuo

( % )

pochi semplici passi

inserisci i tuoi dati
Questionario completato
Grazie per aver richiesto un appuntamento senza impegno con un nostro Consulente del Credito e Assicurativo.

Hai inserito correttamente tutti i dati necessari e a breve riceverai una e-mail con un link da convalidare per inviare i tuoi dati.
Affiliato
Studio Balduina Srl
P.le delle Medaglie D'oro , 27 00136 Roma (RM)

Il nostro staff


  • Salvatore Bonaccorso
    Responsabile

  • Federica Focà
    Collaboratrice

  • Chiara Catapang Morales
    Coordinatrice
P.le delle Medaglie D'oro , 27 00136 Roma (RM)
Zona: Balduina
Mostra su mappa
Orari: lunedì - venerdì 08.45/19.00 - sabato 9.00/13.00
Affiliato
Studio Balduina Srl
P.le delle Medaglie D'oro , 27 00136 Roma (RM)

2025 Tecnocasa Franchising S.p.A. - P. IVA 08365160152 - Via Monte Bianco 60/A 20089 Rozzano (MI). Ogni agenzia ha un proprio titolare ed è autonoma. Privacy policy | Policy utilizzo | Cookie policy