Quadrilocale in vendita

Roma, Via Pompeo Trogo - Balduina
€ 545.000
4 locali 4 locali
120 Mq 120 Mq
2 bagni 2 bagni

Quadrilocale in vendita

Roma, Via Pompeo Trogo - Balduina

Descrizione annuncio

VIA POMPEO TROGO – TERZO PIANO, RISTRUTTURATO CON POSTO AUTO E CANTINA

Nel cuore della Balduina, precisamente in Via Pompeo Trogo, proponiamo in vendita un immobile completamente ristrutturato, situato al terzo piano di uno stabile elegante e ben tenuto, con servizio di portineria attivo tutto il giorno e con posto auto condominiale a rotazione, un dettaglio sempre più raro e prezioso in zona.

La palazzina è stata recentemente ristrutturata sia internamente che nelle facciate, garantendo così un contesto moderno, curato e di rappresentanza.

L’appartamento si presenta come una soluzione abitativa pronta da vivere, ideale per chi cerca ambienti ampi, ben distribuiti e rifiniti con gusto, con parquet in tutti gli ambienti che dona calore ed eleganza a ogni stanza. L'immobile è termoautonomo, caratteristica che consente una gestione efficiente e indipendente dei consumi.

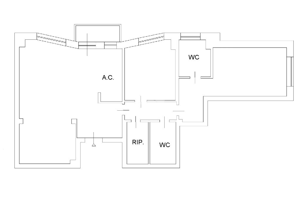
L’ingresso si apre direttamente su un luminoso salone doppio con cucina a vista separata, uno spazio accogliente e arioso pensato per la vita quotidiana e per i momenti di condivisione, con accesso diretto a un balcone che offre uno sfogo esterno riservato e piacevole.

La zona notte, separata da un comodo corridoio, si compone di una prima camera da letto matrimoniale, di un bagno moderno, di un pratico ripostiglio e di una seconda camera da letto dotata di bagno en suite, perfetta per garantire comfort e privacy anche in famiglia o in caso di ospiti.

A completare la proprietà una comoda cantina, perfetta per organizzare al meglio gli spazi di casa, e il già citato posto auto, utile e funzionale per la vita di tutti i giorni.

Una casa pronta da vivere, in un contesto comodo e centrale, perfetta per chi cerca qualità e praticità.

Contattaci subito per maggiori informazioni o per organizzare una visita allo 06.35.40.34.54 o su WhatsApp al 339 536 8094.

Mostra tutto

Nelle vicinanze

Trasporto pubblico Trasporto pubblico
Cipro
Cipro
2,0 Km
Ottaviano
Ottaviano
2,2 Km
stazione di Roma Balduina
stazione di Roma Balduina
800 m
Gemelli
Gemelli
1,3 Km
Mancini
Mancini
1,9 Km
Ricariche auto elettriche Ricariche auto elettriche
Axpo - Stazio
340 m
Rome Cavalieri, A Waldorf Astoria Resort
770 m
Roma Clodio | EnelX
1,4 Km
Roma Mancini | EnelX
1,8 Km
Parcheggio Mercato Trionfale - Musei Vaticani
2,0 Km
Scuole Scuole
Giacomo Leopardi
610 m
John Felice Rome Center
650 m
Scuola elementare Nazario Sauro
1,3 Km
Istituto Comprensivo Diogene Romeo Chiodi
1,4 Km
IUSM Università degli Studi di Roma "Foro Italico"
1,5 Km
Farmacia Farmacia
Farmacia
430 m
Farmacia Rallo
530 m
Farmacia dott.ssa Renata Gerardini
770 m
Farmacia Balduina
970 m
Farmacia Igea
990 m
Ospedali Ospedali
Villa Stuart
690 m
Complesso Integrato Columbus
1,0 Km
Policlinico Universitario Agostino Gemelli
1,3 Km
Hospice Villa Speranza
1,5 Km
Ospedale Oftalmico
2,0 Km
Supermercati Supermercati
Elite
490 m
Simply Market
540 m
Carrefour Market
550 m
PAM
710 m
PIM
1,0 Km
Negozi Negozi
Negozi
370 m
OVS
580 m
Sicilian Bakery
600 m
Windrose Roma
660 m
Minimarket e frutteria
810 m
Bar Bar
Chalet nel Bosco
1,2 Km
Il Bosco delle Fragole
1,3 Km
Life'85
1,3 Km
chiosco/bar 15
1,3 Km
GM Bar
1,3 Km
Ristoranti Ristoranti
Ristorante Festoavieno
450 m
La Natura
490 m
Il Chiodo Fisso
540 m
Foodoo
570 m
The View
610 m
Mostra tutto

Caratteristiche

Rif.:
61112541
Piano:
3 di 6 con ascensore (Piano alto)
Posti auto:
1
Balconi:
1
Camere da letto:
2
Arredamento:
Assente
Mostra tutto
Prezzo Prezzo
€ 545.000
Rata mutuo Rata mutuo
€ 2.497 / mese
Spese annue Spese annue
€ 1.800
Proponi il tuo prezzoProponi il tuo prezzo

Classe Energetica

G
G
G
G
G
G
G
G
G
EP globale rinnovabile:
175.00 kW h/m² anno
EP invernale del fabbricato:
EP estiva del fabbricato:
Riscaldamento:
Autonomo
Tipo impianto:
A radiatori
Tipo alimentazione:
Metano

Ti interessa visionare l'immobile?

Fissa un appuntamento  Fissa un appuntamento

Richiedi informazioni

* Questi campi sono obbligatori

Calcola il tuo mutuo

Semplice e senza impegno
Anticipo

( % )
Mutuo

( % )

pochi semplici passi

inserisci i tuoi dati
Questionario completato
Grazie per aver richiesto un appuntamento senza impegno con un nostro Consulente del Credito e Assicurativo.

Hai inserito correttamente tutti i dati necessari e a breve riceverai una e-mail con un link da convalidare per inviare i tuoi dati.
Affiliato
Studio Balduina Srl
P.le delle Medaglie D'oro , 27 00136 Roma (RM)

Il nostro staff


  • Salvatore Bonaccorso
    Responsabile

  • Matteo Bellassai
    Collaboratore

  • Federica Focà
    Collaboratrice

  • Carlo Amadio
    Collaboratore

  • Chiara Catapang Morales
    Coordinatrice

  • Samina Rehman
    Collaboratrice
P.le delle Medaglie D'oro , 27 00136 Roma (RM)
Zona: Balduina
Mostra su mappa
Orari: lunedì - venerdì 08.45/19.00 - sabato 9.00/13.00
Affiliato
Studio Balduina Srl
P.le delle Medaglie D'oro , 27 00136 Roma (RM)

2025 Tecnocasa Franchising S.p.A. - P. IVA 08365160152 - Via Monte Bianco 60/A 20089 Rozzano (MI). Ogni agenzia ha un proprio titolare ed è autonoma. Privacy policy | Policy utilizzo | Cookie policy